In This 431 FT2 Industrial Chic Apartment, the Bathroom Has Been Hidden in a Cool Wooden Cube

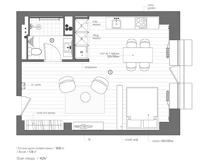
This small 431 ft2/ 40 m2 apartment by INT2 Architecture is a gorgeous example of the industrial chic style that has become very popular recently. The small home boasts painted brick walls, concrete ceilings, stainless steel shelving units and vintage furniture. The bathroom is hidden away in a cool wooden cube.

INT2_interiorMA2_1 INT2_interiorMA2_2 in3 INT2_interiorMA2_4 in7 INT2_interiorMA2_6 in9

Photos courtesy of INT2 architecture

Don't Miss These Articles