Facebook
Instagram
Mail
Pinterest
TikTok
Twitter
Youtube
home
interior design
Tiny houses
Skoolies
Apartments
Campers
Cabins
Motorhomes
shopping
travel
furniture
accessories
Search
Living in a shoebox
home
interior design
Tiny houses
Skoolies
Apartments
Campers
Cabins
Motorhomes
shopping
travel
furniture
accessories
Facebook
Instagram
Mail
Pinterest
TikTok
Twitter
Youtube
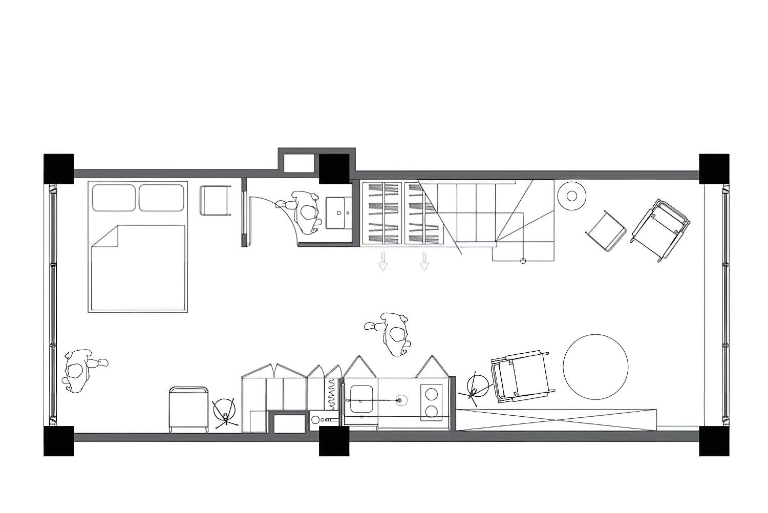
bazi-studio (16)